[H02628] 第1和秀ビル
お気軽にお問い合わせください。
横川本店:082-291-9449 本通立町店:082-504-8686
| 中広町1丁目の売ビル、満室時賃料月額507,000円、満室利回り9.65% | |
|
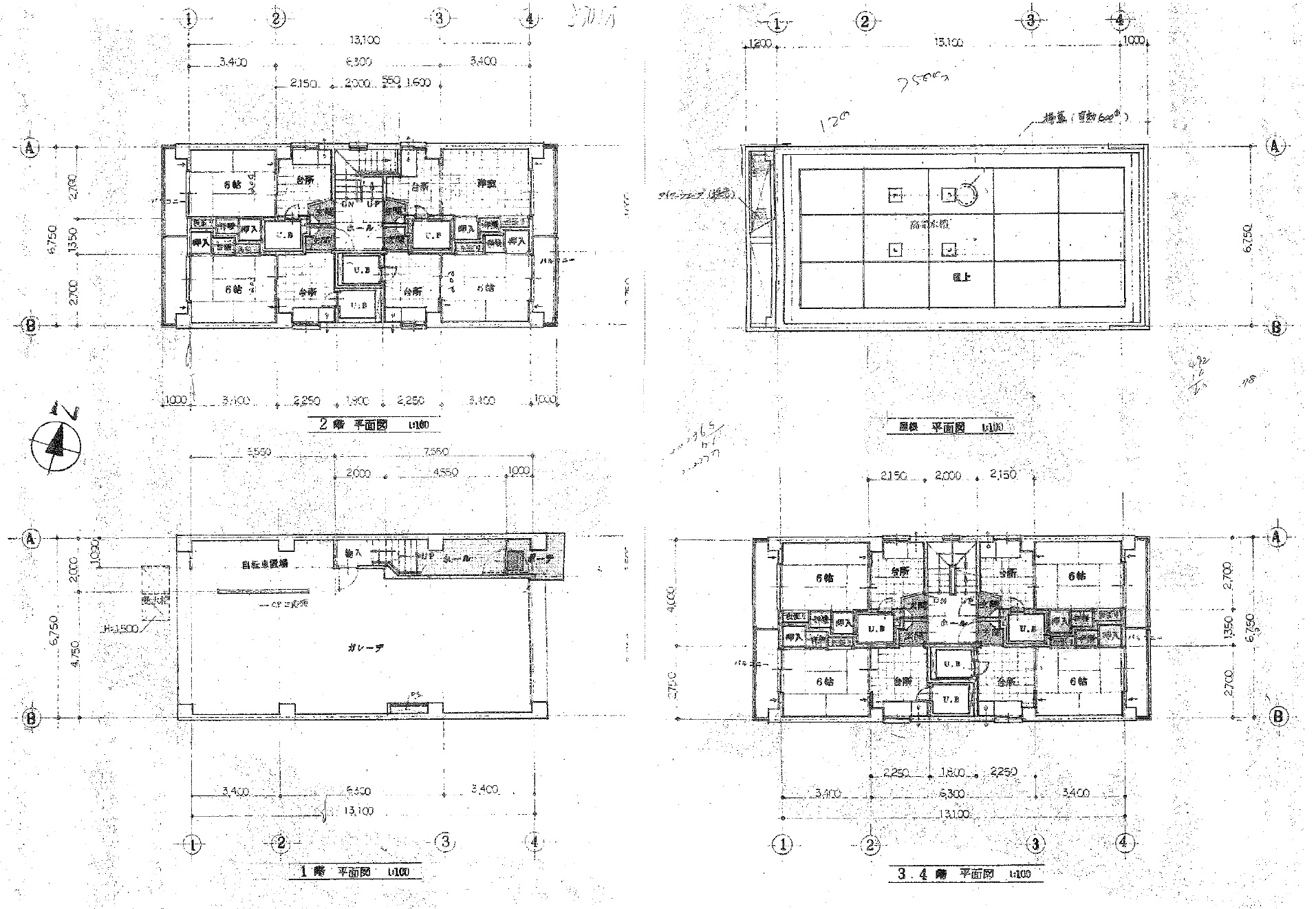
所在:広島市西区中広町一丁目 価格:6,300万円 間取: |
|
|---|---|
| 所在地 | 広島市西区中広町一丁目 | ||
|---|---|---|---|
| 交通 | 広電バス 中広1丁目バス停 徒歩2分 | ||
| 構造 | RC | 制限 | 準工業 建ぺい率 60% 容積率 200% |
| 土地 |
地目 宅地 面積 148.82m²(45.01坪) |
建物 | 1985/2 面積 353.68m² |
| 設備等 | ・シャワー ・ガスコンロ可 ・給湯 ・都市ガス ・エアコン ・バルコニー ・角部屋 | ||
| 引渡 | 相談 | 現況 | 賃貸中 |
| その他 | 1階事務所、2階~4階1K×12戸 | ||
Loading...

















